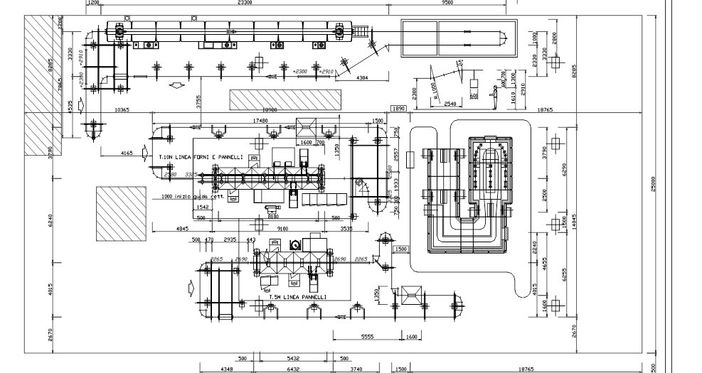
Provided concept design and project management for complete powder enameling plant in Egypt, while working for Nordson Corporation.

This project consisted of :
- Pretreatment department with spray washer & dry-off oven
- Combined powder enamel system for ground coat on panels & baking ovens
- Powder application system for white cover coat enamel.
- Low thermal mass enameling furnace

